Noah | New Homes for Sale in Centralia, WA

Single Family Home

Est. Loading... /mo

$529,990

  • Square Footage

    2,621 sq ft

  • Bedrooms

    5 beds

  • Bathrooms

    2.25 baths

  • Number of Floors

    2 floors

  • Parking Bays

    2 bays

Centralia Woods
518 Salzer Creek Dr,
Centralia, WA 98531

phone icon 360-637-4921
watch icon Sales Office Hours

Sales Office Hours

Monday 10:00 AM - 06:00 PM

Tuesday 10:00 AM - 06:00 PM

Wednesday 01:00 PM - 06:00 PM

Thursday 10:00 AM - 06:00 PM

Friday 10:00 AM - 06:00 PM

Saturday 10:00 AM - 06:00 PM

Sunday 11:00 AM - 06:00 PM

Overview

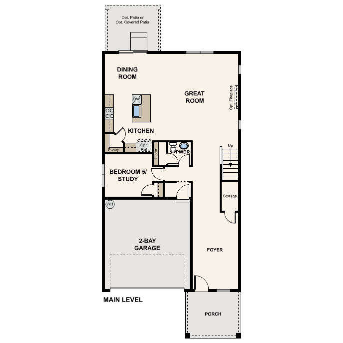
The Noah at Centralia Woods features three stories of inspired space, designed to suit your daily living and entertaining needs. As you enter the home from the generous front porch, you’ll find a hall bath and a secluded study/bedroom—perfect for privacy and relaxation. The long foyer leads to an open-concept great room and a well-appointed kitchen—boasting a generous center island, a roomy pantry and a charming dining area with direct access to the covered patio. Upstairs, there are three secondary bedrooms, a hall bathroom, a spacious bonus room and a convenient laundry room. Completing the upper level is a stunning owner’s suite—showcasing a large walk-in closet and a deluxe bathroom with dual vanities and a walk-in shower. 

Floor Plan

Interactive Floor Plan

Enjoy a closer look at what this plan has to offer!

Explore homesites at this community!

Get a feel for the neighborhood and find the right homesite for you.

Community Information

Centralia Woods

Explore exceptional new single-family homes in Centralia at Centralia Woods by Century Communities! With an inspired lineup of floor plans—boasting contemporary open-concept layouts and desirable included features, such as quartz countertops—this exciting new community offers something for everyone. You'll love the small-town feel and prime location near downtown Centralia’s shopping, dining, and more. Located off I-5, Centralia Woods offers a central location for proximity to Chehalis and Olympia. Contact us today and discover all that Centralia Woods has to offer.

Schools

The Centralia School District, designated as District No. 401, serves the entirety of Centralia, Washington. It aims to provide a comprehensive education and prepare students for academic and personal excellence, with a motto of "Rising Strong: Success, No Exceptions."

 

  • In the 2023 school year, the district served approximately 3,440 students with a student-teacher ratio of around 16:1
  • Edison Elementary School
  • Washington Elementary School
  • Oakview Elementary School
  • Fords Prairie Elementary School
  • Jefferson Lincoln Elementary School
  • Centralia Middle School
  • Centralia High School
  • Futurus High School

Shopping and Dining

  • Centralia Outlets, LLC
    Centralia, WA 98531
  • Coach Outlet
    Centralia, WA 98531
  • Gap Factory
    Centralia, WA 98531
  • Nike Clearance Store
    Centralia, WA 98531
  • Pendleton Outlet
    Centralia, WA 98531
  • Columbia Clearance Store
    Centralia, WA 98531
  • Aéropostale
    Centralia, WA 98531
  • Eddie Bauer
    Centralia, WA 98531
  • Gap Factory
    Centralia, WA 98531
  • Los Agaves
    Centralia, WA 98531
  • Zabdi Teriyaki
    Centralia, WA 98531
  • The Limit Bar & Grill
    Centralia, WA 98531
  • The Quesadilla Factory
    Centralia, WA 98531
  • Vicky's Salvadorian Restaurant
    Centralia, WA 98531
  • Main Street Grill
    Centralia, WA 98531
  • Berry Fields Cafe
    Centralia, WA 98531
  • O'Blarney's at the Gibson House
    Centralia, WA 98531
  • Country Cousin Restaurant
    Centralia, WA 98531

Homeowner reviews

See for yourself what our Century Communities homeowners are saying about their dream homes!

Request Information

Do You Currently Rent or Own
I'm a realtor required
Schedule a Tour

Century Communities' privacy policy can be found at www.centurycommunities.com/privacy-policy.

 

SMS Consent: By consenting to recieve SMS messages, your agree that we can contact you via text using the phone number provided.  Text messaging will be used to send information specific to your inquiry or offers related to your inquiry.  Message frequency will vary - with a maximum of 10 text messages sent in a 30 day window. 

 

Standard text message rates apply. Users can opt out of text messages at any time by texting STOP.

 

©2025 Century Communities, Inc.

 

This site is protected by reCAPTCHA.