The Platte | Residence 2122 | New Homes for Sale in Lochbuie , CO

Single Family Home

Est. Loading... /mo

$492,990

  • Square Footage

    2,122 sq ft

  • Bedrooms

    4 beds

  • Bathrooms

    3 baths

  • Number of Floors

    2 floors

  • Parking Bays

    2 bays

Bella Vista
2099 Upland St,
Lochbuie , CO 80603

phone icon 303-558-2383
watch icon Sales Office Hours

Sales Office Hours

Monday 10:00 AM - 06:00 PM

Tuesday 10:00 AM - 06:00 PM

Wednesday 12:00 PM - 06:00 PM

Thursday 10:00 AM - 06:00 PM

Friday 10:00 AM - 06:00 PM

Saturday 10:00 AM - 06:00 PM

Sunday 11:00 AM - 06:00 PM

Overview

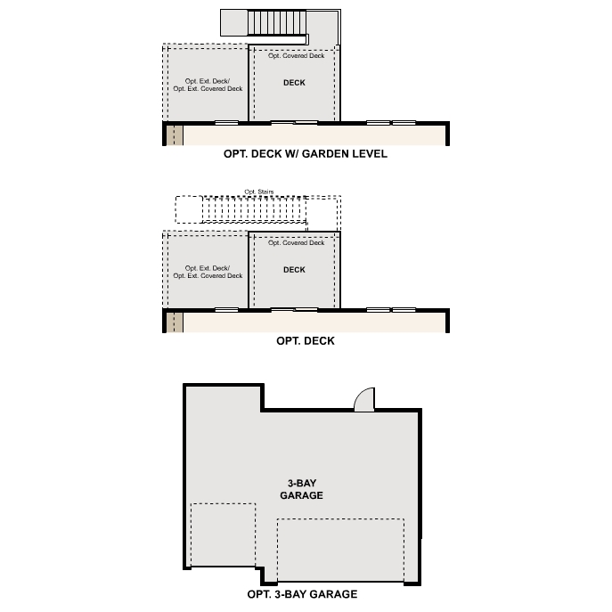
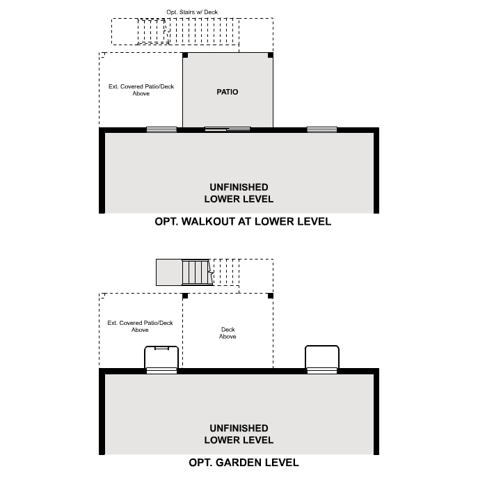
If you’re looking for the perfect blend of space and style, the Platte plan delivers. The main floor features an open, welcoming layout with a bright great room, dining area, and a spacious kitchen complete with a center island and walk-in pantry—ideal for everyday living and entertaining alike. A convenient bedroom and full bath on this level add flexibility for guests or a home office. Upstairs, the peaceful primary suite offers a roomy walk-in closet and private bath, creating a relaxing retreat. Two additional bedrooms and a shared bath complete the upper level. An unfinished lower level provides plenty of opportunity to personalize the space to fit your needs.

 

*Prices, plans, and terms are effective on the date of publication and subject to change without notice. Square footage/dimensions shown is only an estimate and actual square footage/dimensions will differ.  Buyer should rely on his or her own evaluation of usable area. Depictions of homes or other features are artist conceptions. Hardscape, landscape, and other items shown may be decorator suggestions that are not included in the purchase price and availability may vary. No view is promised.  Views may also be altered by subsequent development, construction, and landscaping growth.  ©2026 Century Communities, Inc

Interactive Floor Plan

Enjoy a closer look at what this plan has to offer!

Explore homesites at this community!

Get a feel for the neighborhood and find the right homesite for you.

Community Information

Bella Vista

Bella Vista in Lochbuie, Colorado, by Century Communities is an exciting new community that combines modern living with the natural beauty of the Colorado landscape. Located in the peaceful town of Lochbuie, Bella Vista offers a collection of thoughtfully designed homes in a scenic setting. This community is perfect for those seeking a tranquil lifestyle without sacrificing convenience, as it's just a short drive from the vibrant Denver metro area and nearby shopping, dining, and entertainment options.

 

Bella Vista features a variety of new homes that cater to different needs and lifestyles. Whether you’re a first-time homebuyer, a growing household, or looking to downsize, Bella Vista provides a range of options to suit every preference. Residents can enjoy open spaces, parks, and outdoor recreation, all while being part of a welcoming and tight-knit community.

 

With Century Communities' commitment to quality craftsmanship, Bella Vista is the ideal place to build your next chapter in a location that offers both serenity and connectivity. Come discover a beautiful new home in Bella Vista—where comfort and convenience come together in perfect harmony.

Schools

These schools are part of the Weld County School District RE-3J, which serves the Lochbuie area.  

 

For the most accurate and up-to-date information, it's recommended to contact the Weld County School District RE-3J directly. 

  • Lochbuie Elementary School | K-5th Grade | (303) 536-2400
  • Weld Central Junior High School | 6th-8th Grade | (303) 536-2700
  • Weld Central Senior High School | 9th-12th Grade | (303) 536-2100

Shopping and Dining

  • Lochbuie Marketplace
    Lochbuie, 80603
  • Walmart Supercenter
    Brighton, 80601
  • King Soopers
    Brighton, 80601
  • Target
    Thornton, 80241
  • The Orchards Shopping Center
    Westminster, 80023
  • Southlands Mall
    Aurora, 80016
  • The Chop House
    Brighton, 80601
    Steakhouse
  • Taco Loco
    Brighton, 80601
    Mexican Restaurant
  • The Old Mine
    Hudson, 80642
    American Restaurant
  • Papa’s Pizza
    Brighton, 80601
    Pizza
  • The Rustic Oven
    Brighton, 80601
    Italian Restaurant
  • Hacienda Colorado
    Thornton, 80241
    Mexican Restaurant
  • Coyote’s Southwestern Grill
    Brighton, 80601
    Southwestern Restaurant
  • Sushi Sasa
    Brighton, 80601
    Sushi

Homeowner reviews

See for yourself what our Century Communities homeowners are saying about their dream homes!

Request Information

Do You Currently Rent or Own
I'm a realtor required
Schedule a Tour

Century Communities' privacy policy can be found at www.centurycommunities.com/privacy-policy.

 

SMS Consent: By consenting to recieve SMS messages, your agree that we can contact you via text using the phone number provided.  Text messaging will be used to send information specific to your inquiry or offers related to your inquiry.  Message frequency will vary - with a maximum of 10 text messages sent in a 30 day window. 

 

Standard text message rates apply. Users can opt out of text messages at any time by texting STOP.

 

©2025 Century Communities, Inc.

 

This site is protected by reCAPTCHA.